Проект дома ДД-210

Предоплата
хочу такой дом
О проекте
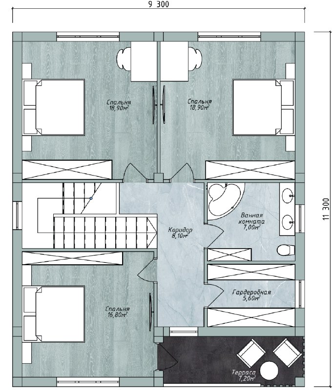
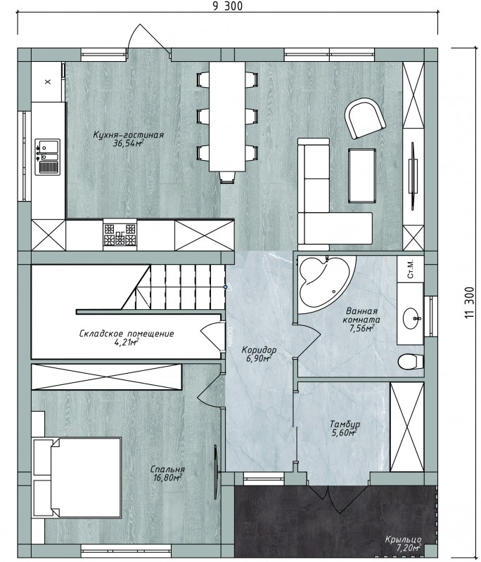
Общая площадь: 210,2 м2
Размер дома: 11,3х9,3 м
Стоимость
Каркасный
под ключ от 11 561 000 руб.
Пенобетон:
руб.
Газобетон:
теплый контур от 9 459 000 руб.
Ракушечник:
теплый контур от 10 215 700 руб.
Керамический блок (Теплоблок):
теплый контур от 11 350 800 руб.
Варианты оплаты
Единовременная
скидка 3%
Безналичный расчет
Поэтапная оплата
Индивидуально
Мат. капитал
принимаем к оплате
Все цены указаны с доставкой
и сборкой на участке ( опалубка, материал, монтаж).

В стоимость входят

Выберите пожалуйста комплектацию
  • Каменные дома
  • Каркасный
Фундамент ростверк, плита
Колонны ЖБ конструкция
Кладка стен ракушечник, газобетон, керамо блок, инкерманский блок
Перегородки кирпич, газобетон.
Перекрытие межэтажное железобетонная плита, деревянное, плиты перекрытия, комбинированное
Сейсмопояса железобетонные
Чердачное перекрытие деревянное, железобетонное
Кровля разных видов или эксплуатируемая
  1. Кровля
  2. Обрешётка
  3. Контробрешетка
  4. Гидроизоляция
  5. Утеплитель
  6. Стропила
  7. Пароизоляция
  8. Подшивка

Этапы сотрудничества

  • Cоставление сметы
  • Выезд на участок
  • Заключение договора
  • Строительство дома
  • Подписания акта
У вас остались вопросы?

Звоните по телефонам:

+ 7 (978) 831 38 12 + 7 (978)116 17 05

Или оставьте заявку:

   Я согласен на обработку персональных данных